AGENCE IMMOBILIÈRE DES GLACIERS Agence
Télécharger la fiche

Appartement 1 pièce(s) 22 m²

()
365 € CC* * Charges comprises Référence POR10

A propos de ce bien

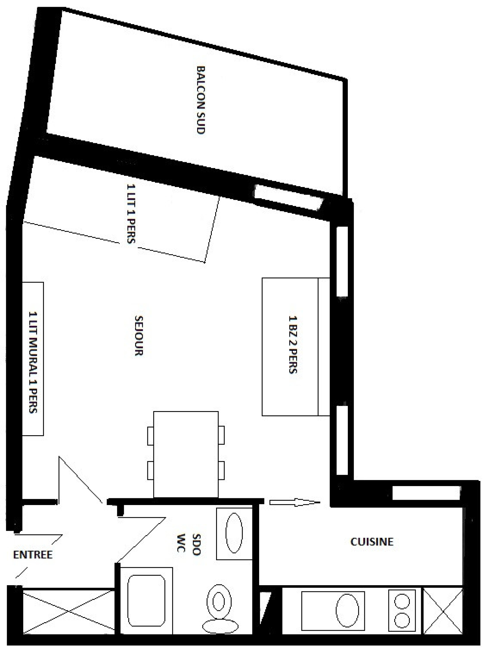
Location appartement Montchavin Les Coches (La Plagne). Résidence : La Porte de Montchavin - Montchavin Résidence de 3 étages située à l'entrée du village, au pied des commerces et à 3 min. à pied des pistes de ski. Casier à ski au niveau 0. Dépose minute à 1 min de la résidence et parking extérieur gratuit en contrebas du bâtiment. Studio d'une surface d'environ 22m², entièrement rénové, classé 2 étoiles et 3 cristaux PARADISKI, équipé pour 3 personnes, avec balcon exposé sud, au niveau 2. Cuisine : 2 plaques vitrocéramiques, réfrigérateur, lave-vaisselle, four électrique. Séjour : 1 lit simple, 1 lit mural, un canapé convertible 2 personnes, Tv écran plat. Salle de bains avec douche et WC. ANIMAUX NON ADMIS. Le prix de la location inclut le ménage de fin de séjour SAUF LA CUISINE. Le logement doit cependant être rendu dans un état décent, le lave-vaisselle vidé, les poubelles sorties et la literie pliée et rangée. Possibilité de commander vos FORFAITS DE SKI par nos soins : bordereau de commande à remplir pour bénéficier d'une REMISE ALLANT JUSQU�À 18% sur le tarif public et du retrait de vos forfaits directement à l'agence lors de la remise de vos clefs. ; louer des équipements bébé ; louer linge de lit et/ou de toilette, box WIFI. Accueil et remise de clés : Agence immobilière des Glaciers - Chalet Meiringen - Montchavin - 73210 LA PLAGNE TARENTAISE ; Tél : 04.79.04.22.86

Caractéristiques de ce bien

  • Surface 22 m²

Diagnostics énergétiques

DPE
GES
DPE ANCIENNE VERSION

Informations financières

Loyer CC* / mois 365 €
Dont état des lieux Non renseigné
Dépôt de garantie TTC Non renseigné