AGENCE IMMOBILIÈRE DES GLACIERS Agence
Télécharger la fiche

Appartement 2 pièce(s) 35 m²

()
580 € CC* * Charges comprises Référence 2BA09

A propos de ce bien

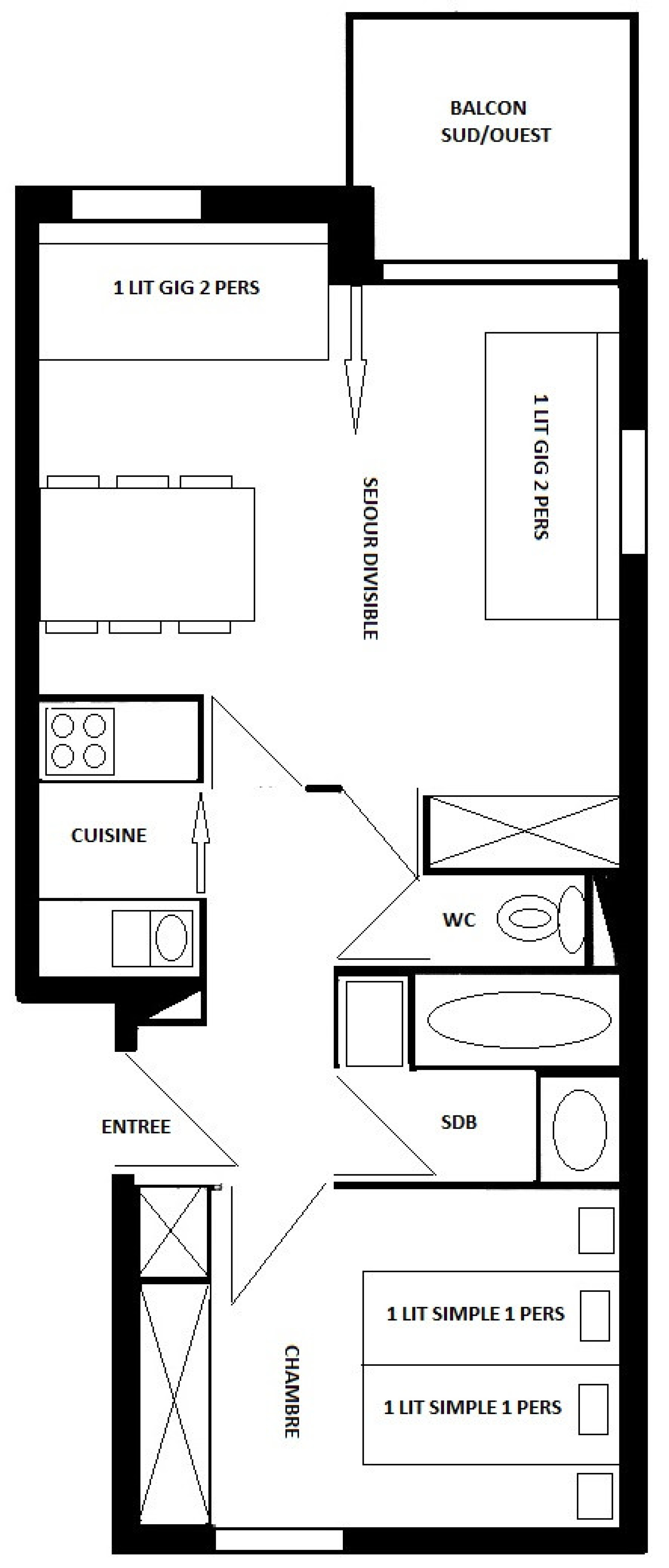
Location appartement Montchavin Les Coches (La Plagne). Résidence : Le Bastion II - Montchavin Résidence de 4 étages située à 2 min. à pied des commerces et 1 min. à pied du départ des pistes avec casiers à skis au RDC. Parking extérieur gratuit proche de la résidence. Appartement 2 pièces + séjour divisible, en très bon état, équipé pour 6 personnes d'environ 35 m², exposé sud/ouest avec balcon/terrasse, côté village et pistes, au premier étage. Coin cuisine : 4 plaques vitrocéramiques, réfrigérateur, lave-vaisselle, four combiné micro-ondes, hotte électrique. Séjour (divisible par paroi coulissante) : 1 lit gigogne pour 2 personnes et 1 canapé rapido, télévision écran plat. Chambre : 2 lits simples rapprochés. Salle de bains avec baignoire et lave-linge. WC séparés. ANIMAUX NON ADMIS. Le prix de la location inclut le ménage de fin de séjour SAUF LA CUISINE. Le logement doit cependant être rendu dans un état décent, le lave-vaisselle vidé, les poubelles sorties et la literie pliée et rangée. Possibilité de commander vos FORFAITS DE SKI par nos soins : bordereau de commande à remplir pour bénéficier d'une REMISE ALLANT JUSQU�À 18% sur le tarif public et du retrait de vos forfaits directement à l'agence lors de la remise de vos clefs. ; louer des équipements bébé ; louer linge de lit et/ou de toilette, box WIFI. Accueil et remise de clés : Agence immobilière des Glaciers - Chalet Meiringen - Montchavin - 73210 LA PLAGNE TARENTAISE ; Tél : 04.79.04.22.86

Caractéristiques de ce bien

  • Surface 35 m²

Diagnostics énergétiques

DPE
GES
DPE ANCIENNE VERSION

Informations financières

Loyer CC* / mois 580 €
Dont état des lieux Non renseigné
Dépôt de garantie TTC Non renseigné